"Leie til eie" i Evenes kommune

Er du mellom 18-34 år, har fast inntekt og ønsker du å bo i Evenes? Da har vi en spennende mulighet for deg! 

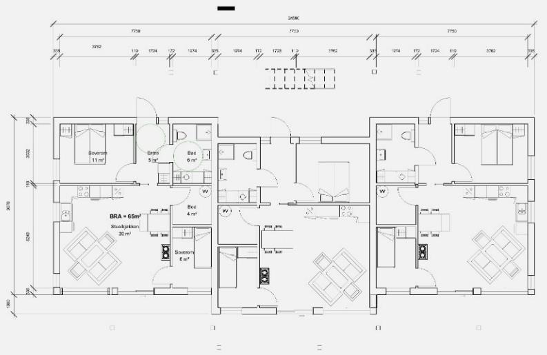
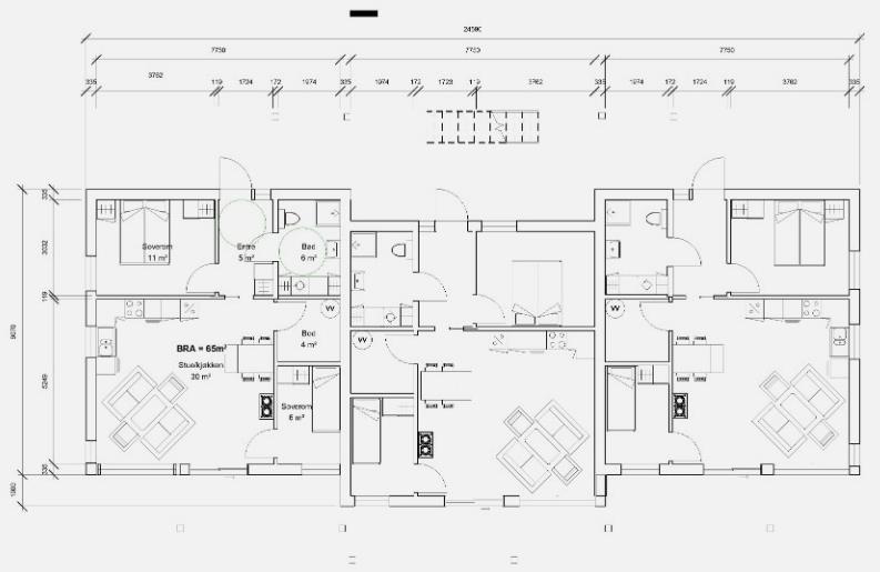
Evenes kommune får nå en «Leie til eie» -leilighet tilgjengelig på Liland. «Leie til eie» gjør det mulig å kjøpe bolig uten egenkapital: 

Først leier du, i maksimum 5 år. Nøyaktig hvor lenge, blir vi enige om. 

Om du ønsker å kjøpe leiligheten, vil 4.833 av de 12.910 kronene per måned du allerede har innbetalt som husleie, bli regnet som egenkapital. For 5 år vil dette utgjøre 10 % av salgsprisen på 2,9 millioner kroner. Også en eventuell verdiøkning i perioden vil regnes inn som egenkapital.

Selv om man har underskrevet en «Leie til eie» -kontrakt, er det ingen kjøpetvang, fordi man i hele leieperioden har en rett, men ikke en plikt til å kjøpe leiligheten til den avtalte prisen. Dersom leieavtale brytes, eller du velger å ikke kjøpe boligen, ansees all innbetaling som husleie. Etter 5 år vil husleien justeres til markedsleie. 

Du er heller ikke nødt til å bo i leiligheten i hele avtaleperioden. Hvis du vil, kan du når som helst avslutte leieforholdet og flytte til en annen bolig. Depositum fastsettes til 1 måneds husleie. 

Målgruppen/ kriterier: 

  • Unge fra 18 til 34 år («boliglån for unge») 
  • Har fast inntekt/jobb i regionen 
  • Er/blir folkeregistrert i Evenes kommune 
  • Utvelgelsen foretas av administrasjonen.  

Meld din interesse til: 

Torill Helene Larsen: torill.helene.larsen@evenes.kommune.no 
tlf. 932 10 637 

eller: postmottak@evenes.kommune.no 
tlf. 769 81 500